Fara í efni

Kjósarhreppur auglýsir skv. 41. gr. skipulagslaga nr. 123/2010. Sandslundur - Deiliskipulag

Deila frétt:

Kjósarhreppur auglýsir skv. 41. gr. skipulagslaga nr. 123/2010.  Sandslundur - Deiliskipulag

Samþykkt var í sveitarstjórn Kjósarhrepps 2. febrúar 2022 að auglýsa tillögu deiliskipulags Sandslundar í Kjósarhreppi og að heimilt sé að falla frá gerð lýsingar fyrir deiliskipulagsverkefnið, enda liggi allar meginforsendur fyrir í aðalskipulagi, sbr. 3. mgr. 40. gr. Skipulagslaga nr. 123/2010.

Einnig samþykkti Hreppsnefnd á sama fundi, að sækja um undanþágu frá 5.3.2.14. gr. í skipulagsreglugerð nr. 90/2013, vegna nálægðar við Sandsá.

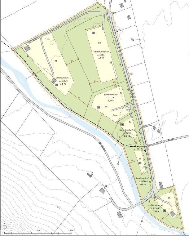
Um er að ræða deiliskipulag fyrir svæði sem skilgreint er sem landbúnaðarsvæði í gildandi Aðalskipulagi Kjósarhrepps 2017-2029. Skipulagssvæðið er um 11 ha og liggur milli Sandsár norðanverðrar og vestan við aðkomuveg að Sandi. Innan svæðisins eru 6 lóðir, uppbygging er hafin á tveimur lóðum og fjórar lóðir eru óbyggðar. Land skipulagssvæðis er fremur flatt og að hluta til á ræktuðum túnum. Heimilað verður að byggja upp til fastrar búsetu á svæðinu í samræmi við aðalskipulag um uppbyggingu íbúðarhúsa og tengdra bygginga, sem ekki tengjast búrekstri viðkomandi jarða á landbúnaðarsvæðum

Í gildi er deiliskipulag á svæðinu frá árinu 2005 og verður það fellt úr gildi við gildistöku þessa skipulags.

Deiliskipulagstillagan verður til sýnis í anddyri hreppsskrifstofu  Kjósarhrepps í Ásgarði frá og með föstudeginum 11. febrúar 2022 til og með 25. mars 2022.  Tillögurnar verða jafnframt birtar á heimasíðu Kjósarhrepps, kjos.is.    Athugasemdir eða ábendingar vegna deiliskipulagstillögunnar skulu vera skriflegar og berast skipulagsfulltrúa í síðasta lagi 25. mars 2022.  Póstlagðar athugasemdir berist á skrifstofu Kjósarhrepps að Ásgarði Kjós, 276 Mosfellsbæ, eða með tölvupósti á netfangið  skipulag@kjos.is

Deiliskipulag - greinargerð

Kjósarhreppur  8.2. 202

Skipulagsfulltrúi Kjósarhrepps